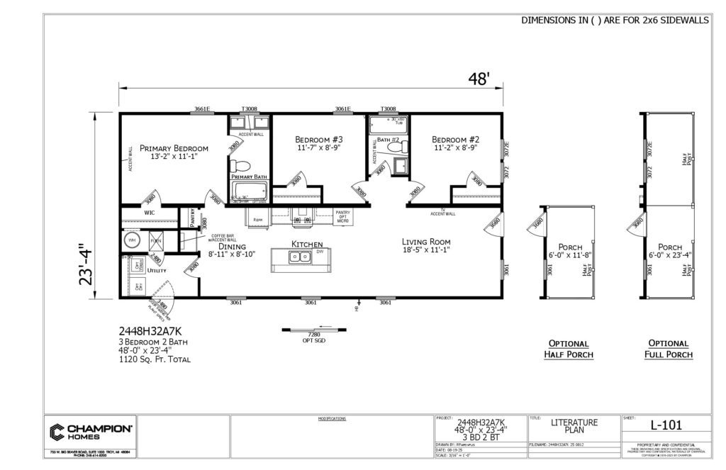
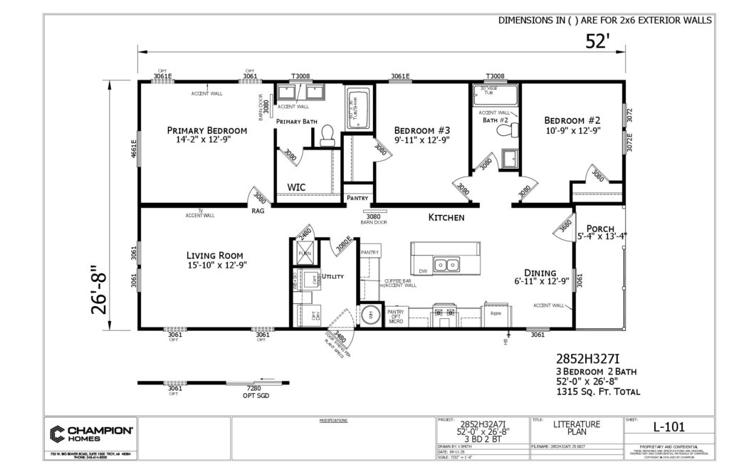
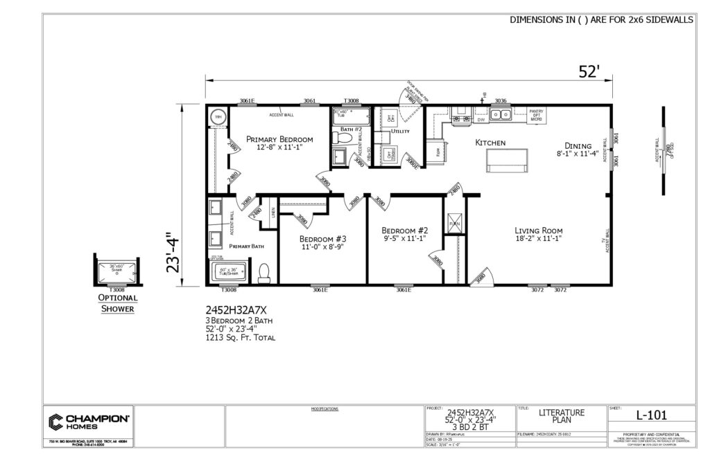
Harmony 1120
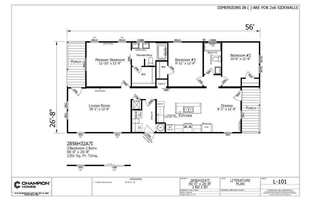
Skyline
Double Wide
1120 sq ft

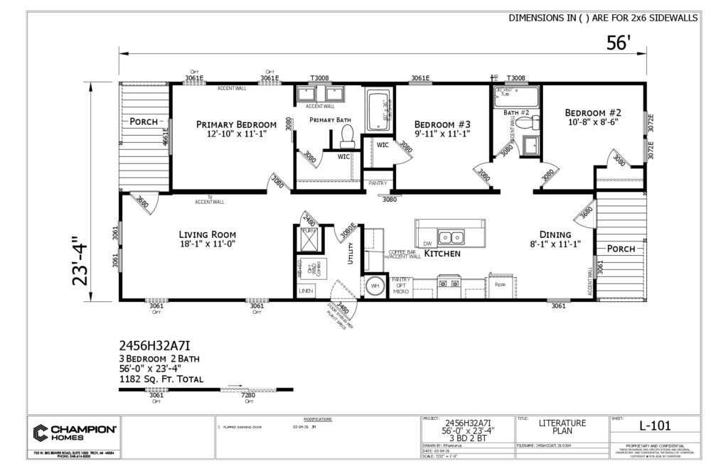
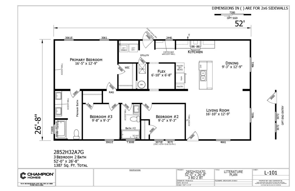
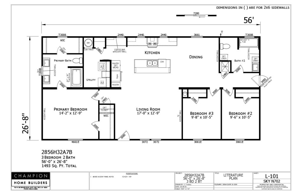
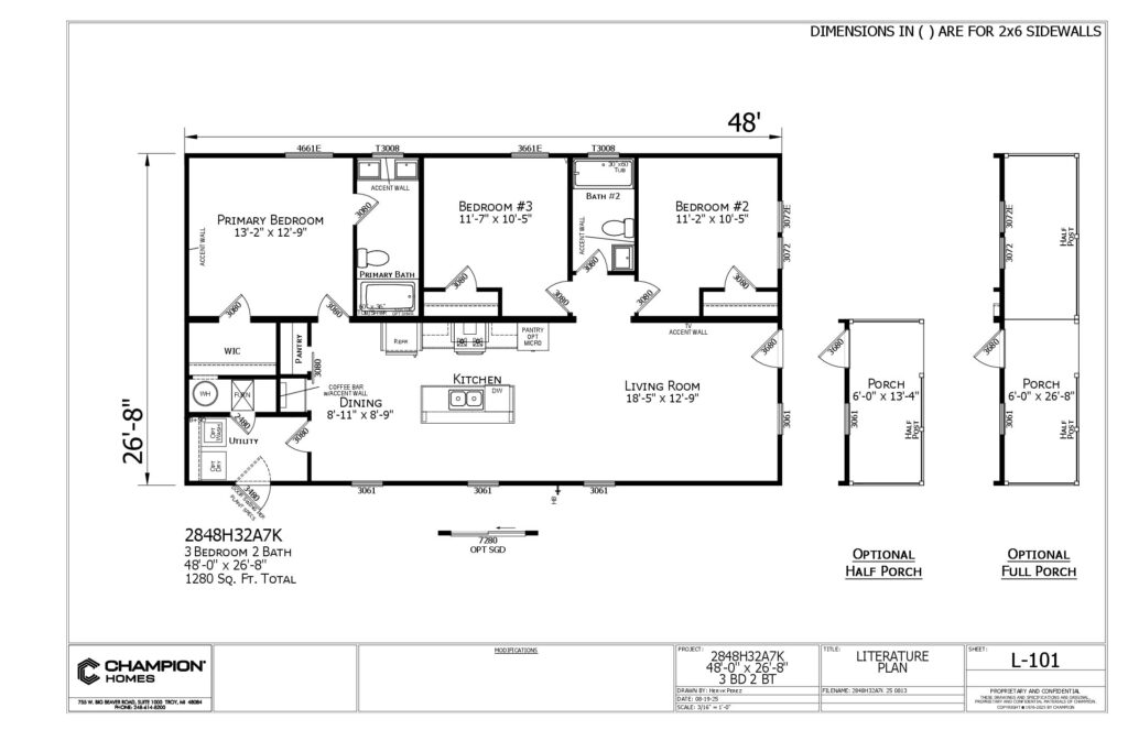
Traditional homes drain your savings with endless maintenance, high utilities, and rooms that sit empty. You deserve a home that fits your life—not one that controls it.
That's where Tiny Trails Realty comes in.
Browse
Move-in ready, luxury manufactured and tiny homes. Tour today, own tomorrow. Don't see what you're looking for? Ask us about special ordering.
